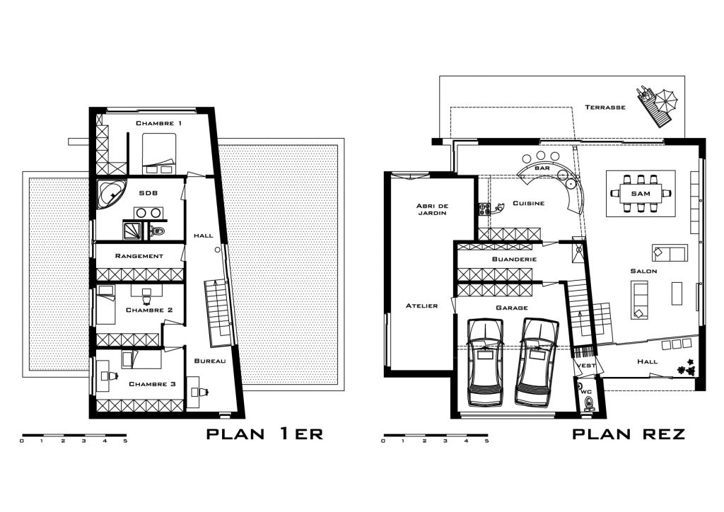
Habitation unifamiliale 4 façades, jeux de toitures plates
PARTAGER SUR
DATE
04.2013
LOCALISATION
Rue de Boussu - 7333 Hautrage Etat
TYPE DE BIEN
Maison
TYPE DE PROJET
Nouvelle construction
Construction d’une habitation reprenant 3 chambres. la volonté du maître de l’ouvrage était de construire une habitation « contemporaine », tournée vers la zone naturelle arrière, en bénéficiant également de l’orientation Sud, latéralement. Un jeu de volume est mis en place afin de créer des perspectives, des interactions entre pièces de vie, et permet de profiter d’une vue panoramique depuis la chambre principale située à l’étage, au niveau du port à faux arrière. La combinaison de deux matériaux de parement (enduit et brique) renforce encore la dynamique mise en place au niveau des volumes.
Photos Laurence Dubuisson















